Case Study

Suspension bridge saddle castings: bid-stage development of complex cast components

Frugal developed full-detail 3D models and manufacturing proposal drawings for a set of large suspension bridge cable saddles, adapting complex legacy design information into a bid-stage package to support foundry, fabrication, machining, and costing review.

Sprint

Bridge infrastructure

Complex 3D modelling

Cast + machined components

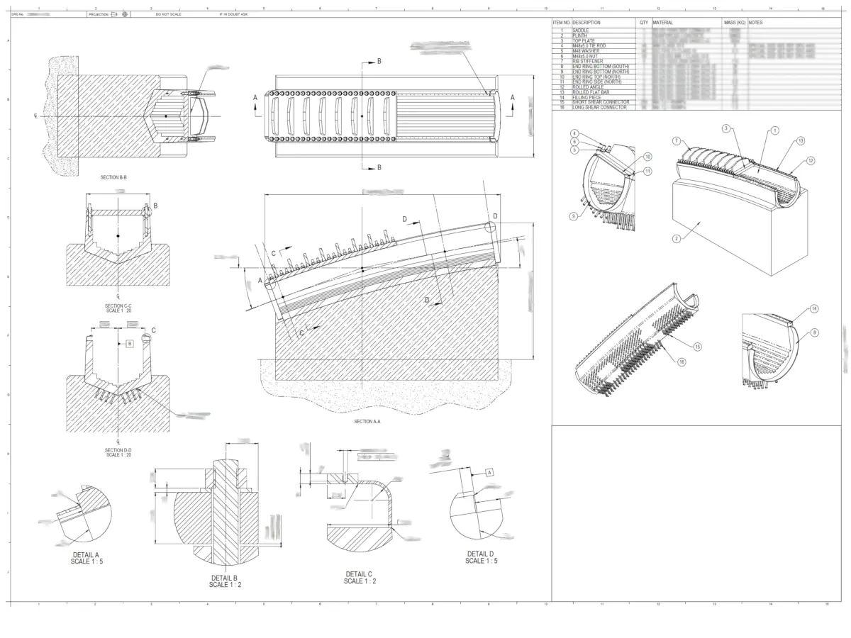
Example 3D model view from the bid-stage package

Example 3D model view from the bid-stage package

Situation

A structural castings manufacturer was working on a live bid for a major suspension-bridge project and needed proposal-stage design content for a family of large saddles and associated components.

Frugal was brought in to adapt existing specialist design information, develop full-detail 3D models, and produce the proposal drawings needed for a bid package robust enough to support internal engineering review, costing, and manufacturing planning ahead of contract award.

The real problem

The real problem here was establishing a level of geometric and manufacturing definition that would be credible enough to support real engineering review, costing, and manufacturing planning before contract award. The technical details of similar legacy bridge packages could provide a useful reference, but not a copy-and-paste finished answer.

The legacy material would have to be reviewed closely, with significant engineering judgement applied, to determine which references genuinely drove the geometry, how the cast / proof / finish states should relate to one another, and where welds, fabricated features, and interfaces needed to be defined early so the package remained production-relevant and usable by others.

Constraints

  • Legacy design adaptation: The technical details of similar legacy projects had to be reviewed and adapted to suit the new requirements for these castings.

  • Manufacturing-level model accuracy: The geometry had to be accurate and stable enough to support real manufacturing confidence, not just bid visuals.

  • Multiple configuration states: Each saddle had to be developed across cast, proof, and finish states, with matching drawing content and assembly context.

  • Interface risk had to be surfaced early: Associated fabricated steelwork and welded features had to be included so hidden clashes, constraints, and cost drivers could be identified before delivery.

  • Internal engineering scrutiny: The outputs needed to stand up to review by the client’s expert in-house engineering team, and support bid-stage costing and manufacturing assessment.

Client:

Structural castings manufacturer

Role:

Mechanical engineering consultant

Period:

2013

Scope:

Full-detail saddle CAD +
Cast / weld / machine definition +
Proposal drawing pack

Acceptance basis:

Client design basis +
Client engineering review +
Bid-stage manufacturability

Key moves

Reviewing and adapting legacy designs

  • Reviewed the detailed technical information from similar legacy projects to identify the design logic, geometry-driving references, and interface conditions relevant to the new saddles.
  • Adapted the inherited design basis to suit the new project requirements, rather than treating the previous work as something that could simply be copied across unchanged.

Building clean, stable, full-detail 3D models

  • Developed full-detail 3D models using concise, robust feature structures driven by key construction geometry established early in the model tree.
  • Captured the complex swept, lofted, and machined geometries exactly, whilst keeping the light, models stable and usable for downstream drawing production.

Defining every manufacturing state

  • Included cast, proof, and finish machining configurations within each model so the 3D models included all stages of geometry from foundry output to fully machined and fabricated component.
  • Structured the package around production-relevant states and interfaces, so it could support review of casting, welding, machining, and assembly logic rather than only a single finished-shape model.

Incorporating fabrication and interfaces

  • Included associated fabricated steelwork, welded features, and surrounding interface conditions so that how the saddles would really be built and installed was a part of the models from the outset.
  • Used that fuller package to surface problem geometry, hidden constraints, and potential cost drivers early rather than leaving these to emerge later during delivery.

Working with in-house specialists

  • Worked alongside the client’s welding engineer to develop practical welded-joint solutions for castings too large or impractical to remain single-piece castings.
  • Provided outputs that could be checked and approved by the client’s internal engineering team, rather than treated only as external presentation material.

Producing a bid-ready technical package

  • Delivered proposal drawings for each saddle type and production state, together with general-arrangement content showing how the components would be assembled and interfaced.
  • Gave the client a technically credible package that supported bid submission, manufacturing review, and more reliable material and weld-quantity costing.

Selected snapshots

Example 3D model view from the bid-stage package

Indicative context image showing the type and scale of bridge involved

Example 3D model view from the bid-stage package

Indicative diagram showing the location of the saddle casting types within the wider bridge arrangement

Example 3D model view from the bid-stage package

Around 40 input reference drawings — this being an anonymised typical example of such — informed the work

Example 3D model view from the bid-stage package

One of the full-detail 3D part models, with some of the driving sketches left visible

Example 3D model view from the bid-stage package

A multi-body part model showing production-state geometry and fabricated-component detail

Example 3D model view from the bid-stage package

One of the saddle assemblies, highlighting the level of production-relevant detail included in the 3D model

Example 3D model view from the bid-stage package

A typical example of the kind of manufacturing drawing output included in the circa 25 x A1 drawing pack

Outcome

Frugal delivered a full-detail 3D and drawing package covering the main saddle types, their production-relevant states, associated fabricated features, and general-arrangement and selected component-detail drawings. This gave the client a technically credible package for internal engineering review, costing, and greater confidence in the manufacturability of the proposed components.

What this enabled

Although the bid did not convert into the final contract award, the work itself achieved its immediate purpose. It turned complex specialist design information into clean, stable 3D geometry and proposal drawings that could support serious foundry, fabrication, machining, and costing discussions.

It also meant that, had the bid been won, the client would have been far better prepared for delivery, rather than having to do that definition work retrospectively and risk uncovering avoidable problems only once execution was underway.

Business perspective

No formal testimonial has been retained for this project. However, the work expanded as it progressed, further packages continued to be routed through Frugal, and the agreed fee plus bonuses were paid promptly on completion.

Based on archived project emails

Contact

If you need to solve a problem and you’d like to explore whether I can help, drop me an email:

What to include

To help me give you a useful reply, please mention…

  • What you’re building or dealing with (one or two sentences)
  • What’s going wrong, what decision you’re trying to make, or where the brief still feels unclear
  • Key constraints (budget, timescale, materials, interfaces, standards)
  • What information you already have (CAD, drawings, photos, etc)
  • Desired outcome (e.g. clearer brief, options report, CAD, calcs, FEA)
  • Any deadlines and why they exist (so I can reality-check them)

Attachments

Attachments are welcome:

  • All enquiries and attachments are treated as confidential by default
  • If attachments are over 2MB, please use a file-sharing service such as Dropbox or WeTransfer and include a download link.

What happens next?

I’ll usually reply with a quick fit-check…

If it's a fit, I will:

  • Tell you whether and how I can help
  • Give you some options for how we could move forward
  • Ask for the minimum info needed to clarify and scope it

If it's not a fit, I will:

  • Say so, and tell you why
  • Suggest an alternative route, if appropriate

Email me directly at:

hello@frugaldesign.co.uk
Compose email